Obiteljske kuće • Vikendice • Manje stambene zgrade • Iskustvo i na većim objektima
Izrađujemo projekte za obiteljske kuće, vikendice i manje stambene zgrade te vodimo klijente kroz dokumentaciju, korake i odluke potrebne da projekt krene sigurno i jasno.
Odgovaramo unutar sat vremena • Bez obveze
Trenutno dostupni
Primamo nove projekte
Za koga je ovo?
01
Trebate arhitektonski projekt kuće koji ima smisla za teren, potrebe obitelji i realan budžet. Radimo idejni i glavni projekt prilagođen vašoj parceli i načinu života.
02
Funkcionalan objekt usklađen s lokacijom, namjenom i dugoročnim korištenjem. Projektiranje vikendice zahtijeva razumijevanje lokalne regulacije, u tome smo iskusni.
03
Trebate projektantski pristup koji podržava dobru organizaciju prostora, optimizaciju tlocrtnih rješenja i jasne sljedeće korake prema građevinskoj dozvoli.
04
Naš tim ima bogato iskustvo u projektiranju i izvedbi zahtjevnih objekata — od shopping centara i proizvodnih hala do kompleksnih poslovnih cjelina. Upravo nam takva širina
omogućuje da stambene projekte razvijamo s dubljim razumijevanjem sustava,
funkcionalnosti i dugoročne kvalitete.
05
Kuća, vikendica ili pomoćni objekt koji nije upisan ili nema potrebnu dokumentaciju — vodimo vas kroz cijeli postupak legalizacije, od geodetskog posla i snimke izvedenog stanja do konačnog rješenja. Više od 300 legaliziranih objekata. Saznaj više
Što radimo?
Ne radimo samo nacrte. Pomažemo vam da od ideje dođete do jasnog, usklađenog i provedivog projekta. Svaka faza prilagođena je vašem objektu, radimo onoliko koliko je potrebno, ne više i ne manje.
01
Od idejne razrade do potpune projektne dokumentacije. Prilagođavamo svaku fazu objektu, lokaciji i ciljevima investicije.
02
Etažni elaborat za prodaju, nasljedstvo, upis vlasništva ili razdvajanje suvlasničkih dijelova. Kompletno, od izmjere do upisa u ZK.
03
Ovlašteni stručni nadzor koji štiti vaše interese na gradilištu. Gradnja prema projektu, u roku i unutar dogovorenog budžeta.
04
Ovlašteni stručni nadzor koji štiti vaše interese na gradilištu. Gradnja prema projektu, u roku i unutar dogovorenog budžeta.
Kombiniramo sve tri usluge u jedan konzistentan proces. Radimo sve od prvog nacrta do završetka gradnje.
Naši projekti




















Zašto mi
01
Znate u kojoj ste fazi, što slijedi i koje informacije trebamo da projekt ide dalje. Nema čekanja i nedoumica, odgovaramo unutar sat vremena.
02
Ne crtamo generična rješenja, nego prostor koji odgovara načinu života, lokaciji i ciljevima investitora. Svaki arhitektonski projekt kuće je drugačiji.
03
Od obiteljskih kuća i vikendica do shopping centara i proizvodnih hala. Šira perspektiva donosi bolje stambene projekte i pokazuje da razumijemo sustave i složenosti gradnje.
04
Dobar arhitektonski projekt ne treba samo izgledati dobro. Mora biti jasan, logičan i izvediv. Projektiramo ono što se može stvarno sagraditi u roku i budžetu.
01
Recite nam što planirate, gdje se objekt nalazi i u kojoj ste fazi. Ne trebate imati sve papire ni jasnu ideju, dovoljno je da opišete situaciju. Odgovaramo unutar sat vremena.
02
Dobivate jasniju sliku što je potrebno i koji su realni sljedeći koraci. Bez generalnih odgovora, govorimo konkretno o vašoj parceli, tipu objekta i lokaciji.
03
Idejni projekt, prostorni koncept, pa prema glavnom projektu za građevinsku dozvolu. Usklađujemo s vašim potrebama, lokacijom i ciljem investicije. Korak po korak, s vašim odobrenjem.
04
Ne ostavljamo vas samo s nacrtima. Pratimo projekt kroz ishođenje dozvola, koordiniramo s nadležnim tijelima i osiguravamo da znate što sljedeće.
Iskustvo i opseg rada
Najčešće radimo projekte za obiteljske kuće, vikendice i manje stambene zgrade. Uz to imamo iskustva i sa složenijim objektima poput shopping centara, proizvodnih hala i poslovnih cjelina. To nam daje širu projektantsku perspektivu, razumijevanje kako spojiti estetiku, funkcionalnost i izvedivost u svakom projektu.
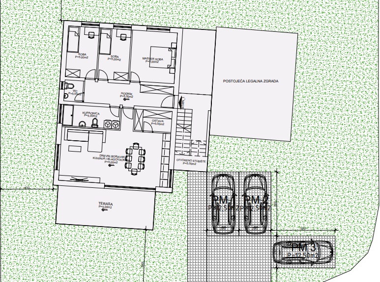
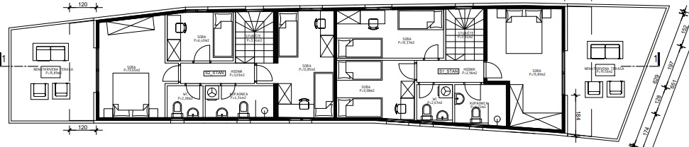
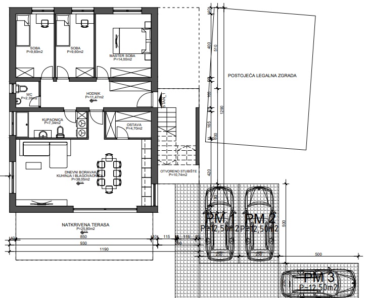
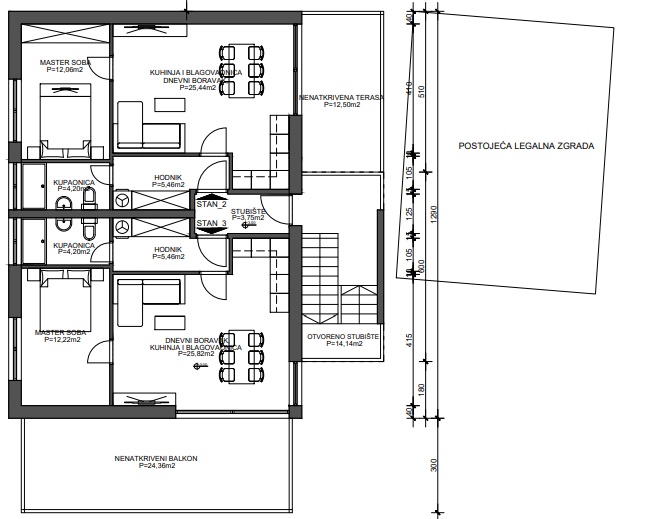
Tipovi objekata
Obiteljske kuće
Vikendice i kuće za odmor
Manje stambene zgrade
Poslovni prostori
Shopping centri
Proizvodne hale
Projekti u brojkama
4.9/5
Recenzije klijenata
“Brzo, povoljno i konkretno.”
T
Tihomir
Lokacijska informacija
emajstor.hr
“Brzina i dobra komunikacija. Preporuka.”
D
Davor S.
Izrada idejnog i glavnog projekta za nadogradnju
emajstor.hr
“Fenomenalna suradnja od početka do kraja. Izvedba je kvalitetna i stvarno detaljna, dali su odlične savjete i brzo su se prilagodili našim željama. Uvik se jave na pozive, ljubazni su i profesionalni, pouzdano drže rokove, a sve to uz fer cijenu. Top preporuka za legalizaciju kuće.”
M
Marko K.
Legalizacija kuće
trebam.hr
Legalizacija
5 – 10 € po bruto m² · ovisno o objektu i parceli
Što uključuje postupak legalizacije?
Naš tim osigurava da sve bude odrađeno u skladu sa zakonom, brzo i učinkovito.
01
Ovlašteni stručni nadzor koji štiti vaše interese na gradilištu. Gradnja prema projektu, u roku i unutar dogovorenog budžeta.
02
Detaljna izmjera svih prostorija i izrada kompletne tehničke dokumentacije objekta.
03
Provjera i potvrda vidljivosti objekta na službenim ortofoto snimkama iz 2011. godine.
04
Izjava ovlaštenog inženjera o mehaničkoj otpornosti i stabilnosti — zakonski obvezni dio dokumentacije.
05
Priprema i predaja kompletnog zahtjeva nadležnom tijelu. Komuniciramo s referentima u vaše ime.
06
Pratimo predmet do pravomoćnog rješenja o legalizaciji. Prosječni rok: 14 dana od predaje dokumentacije.
Legalizacija
Kontaktirajte nas i saznajte kako brzo i jednostavno legalizirati vaš objekt.
Obiteljske kuće, vikendice i stambene zgrade u Republici Hrvatskoj. Svaki predmet pratimo do pravomoćnog rješenja.
300+
legaliziranih objekata
14
dana prosječni rok od izmjere
5 - 10€
po bruto m²
Kako radimo?
Pošaljite nam osnovne informacije o objektu i recite nam u kojoj ste fazi. Javit ćemo vam se s prijedlogom sljedećih koraka unutar sat vremena.
Pošaljite upit
Odgovaramo unutar sat vremena radnim danom.
Odgovaramo unutar sat vremena · Bez obveze · GDPR zaštita podataka
FAQ
Radimo na području cijele Hrvatske a najviše projekata imamo u Zagrebu, Šibeniku i Istri.
Ne. Dovoljno je da nam opišete situaciju i kažete u kojoj ste fazi, a mi ćemo vam reći što je korisno pripremiti dalje. Nema potrebe da sve imate unaprijed. Upravo tu počinje naša suradnja.
Primarno radimo obiteljske kuće, vikendice i manje stambene zgrade, ali imamo iskustva i s poslovnim, trgovačkim i proizvodnim objektima. Kontaktirajte nas, razgovarat ćemo o vašem projektu i reći hoće li biti dobar fit.
Da, ako imate postojeći objekt i trebate procjenu mogućnosti ili pomoć oko sljedećih koraka. Javite nam se kroz poseban upit za legalizaciju. Pregledat ćemo situaciju i reći vam što je realno moguće i koliko bi to koštalo.
Doljek 9, 10000, Zagreb, Hrvatska
OIB 63722554367
Kontakt
© 2025 Ninety-nine home design j.d.o.o. · OIB: 63722554367· Sva prava pridržana
Politika privatnosti
Uvjeti korištenja
GDPR